SHAJA

  • 163b_1_
  • 162b_1_
  • 164b_1_
  • 165b_1_
  • shaja1
  • shaja2
 

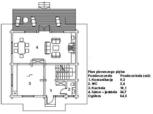
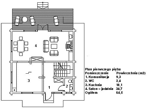
Kompakts, pareizas formas, 121 kv.m. triju īstabu dzīvoklis ar liela terase, atvēlēts 4 personu atpūtai. Ideāls ārpilsētā.

Par cenām var uzzināt tel.: 8 (5) 275 18 70 vai el-pasts: [email protected]

Vairāk līdzīgu projektu - tematā - "Individuālās mājas"

Comments (0)
Prisijunkite, kad galėtumėte komentuoti

Geriausi temos straipsniai

PIRTS

Pirts

SHAJA

SHAJA

TEREM

TEREM

TERRY 1

Māja sešu cilvēku ģimenes atpūtai. 7 istabas, sporta zāle.

Straipsniai

Instrukciniai straipsniai abėcėlės tvarka

ASATV kanalo filmai

TERRY 1

Māja sešu cilvēku ģimenes atpūtai. 7 istabas, sporta zāle.

SHAJA

SHAJA

PIRTS

Pirts

TEREM

TEREM

Specialistas atsako

SEO straipsniai